Nestled on Fairfield Street in the town of Wigston, this delightful Victorian end terrace home, built in 1900, offers a wealth of charm. The property is well-presented throughout and conveniently located near local amenities, making it an ideal choice for families and professionals alike.

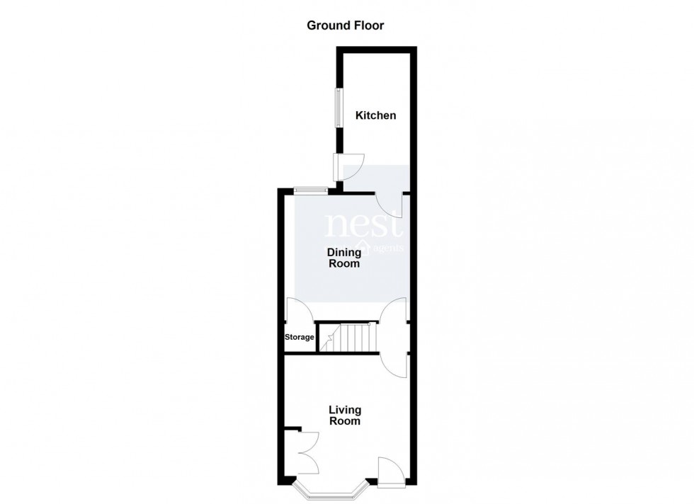
Upon entering, you are welcomed into a living room featuring a beautiful bay window that floods the space with natural light, complemented by a charming feature fireplace that adds warmth and character. Adjacent to the living room is a separate dining room, perfect for entertaining guests or enjoying family meals. The well-appointed kitchen boasts a range of wall and base units, ample work surfaces, and an integrated oven, hob, and extractor fan. There is also space for additional appliances and a courtesy door that leads directly into the generous rear garden.

The first floor comprises two comfortable double bedrooms, providing ample space for relaxation. The second bedroom conveniently leads onto the bathroom, which is fitted with a modern white suite, including a pedestal wash hand basin, a bath with an overhead shower, and a low-level WC.

Externally, the property features a paved frontage that adds to its curb appeal, while the rear garden offers a lovely outdoor space, complete with a lawn area and a patio, ideal for alfresco dining or simply enjoying the sunshine.

This lovely home is a wonderful opportunity for those seeking a blend of period features and contemporary living in a sought-after location. Don't miss the chance to make this delightful property your own.
  • Victorian End Terrace Home
  • Conveniently Located
  • Living Room & Dining Room
  • Fitted Kitchen
  • First Floor Landing & Bathroom
  • Two Double Bedrooms
  • Enclosed Rear Garden
  • Well Presented Throughout
  • EPC Rating - E
  • Council Tax Band A & Freehold
Floorplan for Fairfield Street, Wigston Floorplan for Fairfield Street, Wigston
EPC Graph for Fairfield Street, Wigston
Similar Properties