Horseshoe Close, Cosby, Leicester

Sold Subject to Contract £269,999

3
This well-presented detached home, linked by the garage, is ideally located within close proximity to the local primary school and park — making it a perfect choice for families. Positioned at the head of a quiet cul-de-sac, the property offers both parking and a garage. An internal viewing is highly recommended to fully appreciate what this lovely home has to offer.

Entering through the hallway, you’re greeted by a staircase rising to the first floor and access to a handy downstairs WC. The lounge has a cosy and welcoming feel, with a window to the front elevation and a square archway leading through to the dining area.

The kitchen is fitted with a range of shaker-style wall and base units complemented by a contrasting work surface and sink drainer. Integrated appliances include a dishwasher, fridge freezer, oven, hob, and extractor fan. A fantastic addition to the property is the conservatory — a versatile space that can be used as a playroom, home office, or simply a relaxing spot to unwind.

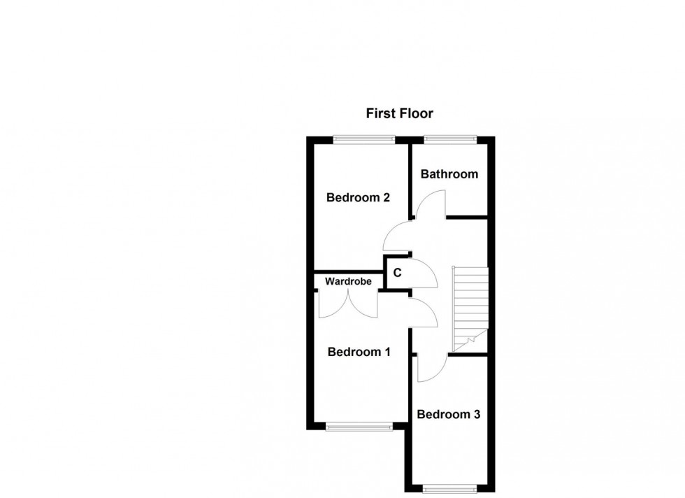
Upstairs, the landing provides access to a storage cupboard and the loft. There are three bedrooms in total: two spacious doubles and a comfortable single. The family bathroom features a modern white suite comprising a pedestal wash hand basin, low-level WC, and a bath with overhead shower.

Outside, the rear garden is enclosed with wall and fence boundaries, mainly laid to lawn with a patio area ideal for outdoor dining, plus a garden shed for additional storage.
  • Link Detached Family Home
  • Sought After Village Location
  • Well Presented Throughout
  • Entrance Hall & Downstairs WC
  • Lounge & Dining Area
  • Kitchen & Upvc Conservatory
  • First Floor Landing & Family Bathroom
  • Three Bedrooms
  • Off Road Parking & Garage
  • Freehold EPC Rating - TBC & Council Tax Band - C
Floorplan for Horseshoe Close, Cosby, Leicester Floorplan for Horseshoe Close, Cosby, Leicester
EPC Graph for Horseshoe Close, Cosby, Leicester
Similar Properties